近日,維爾利環保集團承接的廣州市第七資源熱力電廠二期從化項目BIM施工圖在2021“SMART BIM”智建BIM大賽上榮獲設計組一等獎佳績,為集團邁入三維設計階段打開良好局面。

傳統CAD技術基于二維平面排布設備、管道、橋架,受制于設計人員、施工人員空間想象力不足、經驗水平不一等主觀因素。實際施工過程中,易出現管線碰撞、布局不美觀等問題,造成返工修改、材料浪費等情況。
隨著互聯網、大數據、BIM技術的飛速發展,對項目施工圖紙進行三維描述和表達的數據基礎、技術條件已經具備。以BIM技術為支點,結合數據平臺,助推項目施工過程直觀化、精準化、高效化,是今后環保工程發展的新思路。

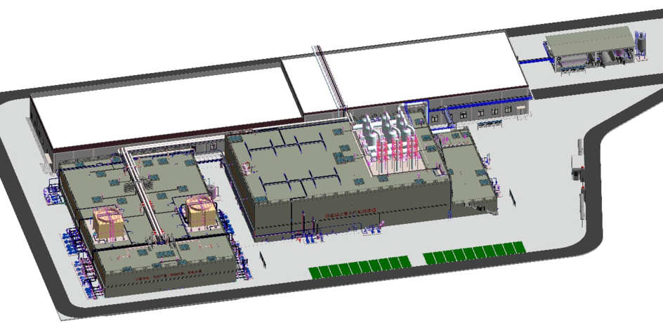
維爾利環保集團于2019年承接了廣州環保投資集團有限公司的廣州市第七資源熱力電廠二期從化項目,該項目滲濾液處理站設計規模為900 m3/d(其中滲濾液720m3/d,低濃度生產廢水180m3/d)。滲濾液處理工藝采用“預處理+厭氧+外置MBR(二級A/O)+NF+RO”,低濃度廢水與滲濾液厭氧出水混合后進入后續生化處理、膜深度處理。NF濃縮液采用兩級物料膜處理工藝,RO濃縮液采用化學除硬+管式軟化膜+高壓膜處理工藝,處理后出水達到《城市污水再生利用工業用水水質標準(GB/T19923-2005)》中的敞開式循環冷卻水補充水標準后回用。
集團以該項目為起點,啟用BIM技術進行三維施工圖設計,開啟前端設計由二維向三維轉型的新征程。

(1)管道布局優化:BIM軟件自帶管道碰撞測試性能,繪制過程中可以及時調整管道布局,保證管線布置合理性,克服二維設計中出現的管線碰撞問題,管道布局得到很大程度優化。
(2)直觀化:BIM三維圖紙將設備、管道、閥門等工程組成要素以具象化的方式呈現,相對二維平面表達更為清晰直觀。
(3)精細化:BIM出圖可一鍵生成工程量清單、各視角剖面圖、軸測圖,突破傳統CAD出圖工程量統計粗略、剖面圖紙粗糙的困境,項目出圖質量得到大幅提升,項目從設計到安裝施工過程對接更加精細化,達到“設計即落地”的效果。
(4)高效化:工程量清單的精準化將有效避免材料采買過?;蛉笔У那闆r,提高了前端采購工作效率。同時,三維呈現能更加全面地表達設計意圖,可以減少大量的設計變更,有利于提高項目實施效率,形成每一個施工人員“找得快,看得懂,快施工”的良好局面。
(5)成本管控:工作高效化意味著人工成本、時間成本得到節省,同時,材料統計的準確性意味著采購成本得到節省。因此,三維設計對強化項目的安裝成本管控工作具有建設性作用。對于項目管理者而言,能夠做到心中有數,掌握全局,有效管控成本。




對于項目實施而言,以廣州市第七資源熱力電廠二期從化項目為例,在項目安裝階段,三維施工圖紙減少了現場施工人員辨圖、識圖的時間,節省時間成本、提高施工效率。
對于部門發展而言,從二維設計向三維設計轉型是大勢所趨,最終實現全員直接利用BIM軟件進行正向設計的目標,替代傳統的二維設計表達,對設計人員自身能力是一次顛覆性的提升,繼而形成設計部門整體水平提升的向好局面。
對于企業發展而言,BIM三維設計對項目成本管控工作具有很大幫助性。而強化成本管理、降低成本是環保工程公司繼續發展必須重視的問題,抓住它就可以帶動全局,在環保市場才會更具競爭力。
對于行業發展而言,運維管理是BIM技術最具潛力的發展方向。以BIM技術為手段錄入項目各要素的基本信息,結合互聯網、大數據創建智慧平臺,在項目后期運維階段能夠有效幫助運維人員對現場的建筑、設備、管道等組成要素進行維護和改造,逐步改善二維設計時代信息不足、信息缺失導致運維管理困難的痛點,這是今后BIM技術值得關注和拓展的價值所在。
從2020年開始,集團迅速推進BIM三維設計團隊建設工作,邀請專業老師對集團設計人員進行BIM軟件操作培訓,逐漸形成一批具有三維設計能力的BIM工程師團隊,由點及面、以少帶多,最終實現全員進行三維設計的轉型,這是集團在技術上的一次進步。
未來,BIM三維技術將持續釋放創造力,我們也期待,BIM與環保行業碰撞出更多激動人心的、具有歷史革新性的火花。